Địa chỉ: Phường Thạnh Lộc, Quận 12, TP. HCM
Chủ đầu tư: Công Ty Cổ Phần Vạn Xuân Bình Dương
Cấp công trình: Cấp I
Loại công trình: Dân dụng
Quy mô công trình: 01 hầm + 25 tầng cao, diện tích sàn: 53.793,7 m2
Biện pháp thi công định hướng: Đào mở
Tư vấn: Thiết kế kết cấu
Chung cư tọa lạc tại đường Hòa Huy Giáp, Phường Thạnh Lộc, Quận 12, TP. HCM, là trung tâm của nhiều trung tâm thương mại lớn, sở hữu hệ thống giao thông hiện đại, hệ thống kết nối giao thương thuận tiện.

Vị trí bản đồ dự án Happy One Thạnh Lộc
Dự án được xây dựng với quy mô 1 hầm và 25 tầng cao, với diện tích sàn là 53.793,7 m2. Được đầu tư phát triển với hệ thống tiện ích nội khu bao gồm khu vui chơi, giải trí, thể dục thể thao, bãi đỗ xe, nhà trẻ,...

Dự án Happy One Thạnh Lộc
.png)
Mô hình Etab công trình
.png)
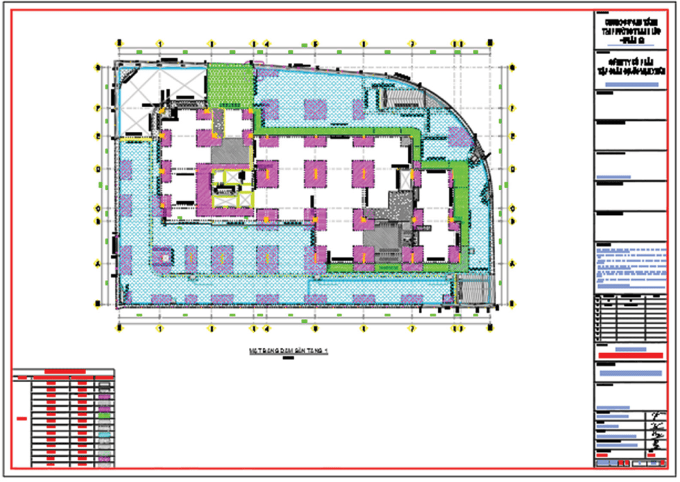
Mặt bằng kết cấu tầng 1
.png)
Tính đến đầu tháng 12 năm 2022, dự án Happy One Thạnh lộc đã từng bước hoàn thiện.
.png)
Tiến độ công trình cập nhật đến cuối tháng 11/2022
.png)
Hệ thống MEP